Lagerhaus Lerchhaus
Lagerhaus Lerchhaus
Lagerhaus Lerchhaus
Lagerhaus Lerchhaus
Lagerhaus Lerchhaus
Lagerhaus Lerchhaus

Lagerhaus Lerchhaus

St. Stephan, Berner Oberland, Schweiz, 1008m
44 Betten, ab CHF 13.50

Selbstkocher
zentrale Lage
in den Bergen
Nähe Skigebiet
Einkauf zu Fuss möglich
Internet/WLAN

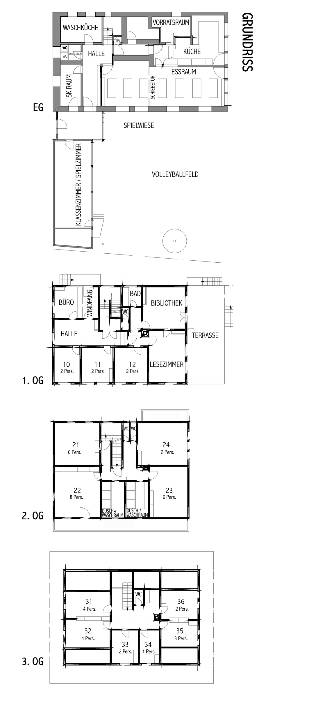
Das Lerchhaus eignet sich in seiner Grosszügigkeit für bis zu 44 Personen. Im Dezember 2017 wurden Renovationen vorgenommen. Neben neuen Fenster im ganzen Haus wurde die Küche mit neuem Kochherd und Abwaschmaschine ausgestattet. Ein grosser Garten, die sonnige Terrasse, die grossen Ess- und Aufenthaltsräume, das Spielzimmer, die Bibliothek und das Lesezimmer machen unser Haus perfekt für Schul- und Kinderlager oder grössere Gruppen. 13 Schlafräume bieten Platz für insgesamt 44 Personen. Gratis Wifi ist vorhanden. Das Haus liegt nur wenige Kilometer von Lenk und Zweisimmen entfernt.
Das Lerchhaus ist ideal für Klassenlager, Skilager, Familienfeste, Projekwochen und Wanderfreunde

Details

Raumangebot

Zimmeraufteilung
Total 44 Schlafplätze
1 Zimmer mit 1 Bett
6 Zimmer mit 2 Betten
1 Zimmer mit 3 Betten
2 Zimmer mit 4 Betten
2 Zimmer mit 6 Betten
1 Zimmer mit 8 Betten
Bettenausrüstung
Schlafsäcke - können mitgebracht werden
Wolldecken - vorhanden
Kopfkissen - vorhanden
Bettwäsche - gegen Aufpreis erhältlich (maximal 20)
Räumlichkeiten
1 Essraum für 44 Personen
2 Aufenthaltsräume
1 Spielzimmer
1 Skiraum
1 Garderobe
Garten

Einrichtung

Küchenausstattung
Elektroherd (mit 4 Platten)
1 Backofen
2 Kühlschränke
1 Gefrierschrank
1 Brotschneidemaschine
1 Abwaschmaschine
Essgeschirr (für 44 Personen)

Sanitäre Einrichtung
2 Waschräume mit 3 Duschen und 3 Lavabos
6 Toiletten

Ausstattung
Internet/WLAN (gratis)
Tischtennis
Töggelikasten/Tischkicker
Spielwiese (im Garten)

Aktivitäten
Skigebiet
Gstaad Mountain Rides
Gstaad ist das einzige Gletscherskigebiet im Berner Oberland.
Gemütliche Chalets, abwechslungsreiche Pisten und andere winterliche Aktivitäten machen das Wintererlebnis komplett.

Höhe Tal:
1000 m
Höhe Berg:
3000 m
Anzahl Lifte:
47
Pistenkilometer:
200 km

Das Ferienhaus Lerchhaus befindet sich im Simmental in St. Stephan im Berner Oberland (zwischen Lenk und Zweisimmen, Schweiz). Es ist durch einen Skibus mit dem schönen Ski- und Wandergebiet von Gstaad und Lenk verbunden. Die Haltestelle des Skibus ist direkt vor dem Haus und bringt Sie zum Skilift auf Lengebrand für Gstaad Mountain Ride. Gültig ist das SkiAbo Gstaad Mountain Ride für die ÖV's ins Skigebiet.

Adelboden- Lenk
Breite Pisten laden zum Carven ein, während der Gran Masta Park die Freestyler-Herzen höher schlägen lässt.
Das Skigebiet im Berner Oberland bietet mehrheitlich einfache bis mittelschwere Pisten.

Höhe Tal:
1068 m
Höhe Berg:
2362 m
Anzahl Lifte:
55
Pistenkilometer:
210 km

Das Gebiet Lenk/Adelboden kann mit dem Zug (MOB)/ Auto erreicht werden.

Freibad
(8 km) - In Lenk, 6. entfernt
Fussballplatz
im Ort
Hallenbad
(8 km) - In Lenk, 6. entfernt
Kino
(8 km) - In Lenk, 6. entfernt
Kunsteisbahn
(8 km) - In Lenk, 6. entfernt
Langlauf
(7 km) - 5 Loipen in 5 Gebieten in der Umgebung
Minigolf
(8 km) - In Lenk, 6. entfernt
Restaurant
- Diverse in der Umgebung
Sauna
(8 km) - In Lenk, 6. entfernt
Tennisplatz
(8 km) - In Lenk, 6. entfernt
weitere Angebote
- Kletterwand
- Reiten
- Wandern
- Biken

Kosten
Preisänderungen bleiben vorbehalten

Hauptsaison von Dezember bis April

Gruppen bis 44 Personen
Erwachsene und Jugendliche ab 16 Jahren: CHF 15.50
Kinder / Jugendliche von 6 bis 16 Jahren: CHF 13.50

Diese Preise gelten für Unterkunft (ohne Bettwäsche). Im Preis inbegriffen sind eine Wolldecke und ein bezogenes Kopfkissen.

Für Kurzbelegungen von 1-2 Übernachtungen wird
eine zusätzliche Pauschale von CHF 100.00 berechnet.

Nebensaison von Mai bis November

Gruppen bis 44 Personen
Erwachsene und Jugendliche ab 16 Jahren: CHF 14.50
Kinder / Jugendliche von 6 bis 16 Jahren: CHF 13.50

Diese Preise gelten für Unterkunft (ohne Bettwäsche). Im Preis inbegriffen sind eine Wolldecke und ein Kopfkissen.

Für Kurzbelegungen von 1-2 Übernachtungen wird
eine zusätzliche Pauschale von CHF 100.00 berechnet.
Mindestbelegung
24 Personen.
4 Nächte
Wird die Mindestbelegung von 24 Personen nicht erreicht, werden CHF 13.00 pro fehlende Person und Übernachtung verrechnet.
Wenn nur 24 Personen mieten, wird die 3. Etage geschlossen. Auf Wunsch und gegen einen Aufpreis von CHF 50.00 pro Aufenthalt/Woche kann die 3. Etage benutzt werden.
Weitere Kosten
Kurtaxen: CHF 3.00 Erwachsene, CHF 1.00 Kinder
Die Endreinigung des Ferienhauses kostet 320.–
ohne 3. Etage 260.– (bitte dem Hauswart am Lagerende bar bezahlen)
Es besteht die Möglichkeit, das Lerchhaus in Eigenverantwortung zu putzen. Bitte teilen Sie dies schon bei der Anmeldung mit.

Elektrizität/Heisswasser (pro Person und Tag): Sommer: unter 20 Personen: CHF 1.60, 21-25 Personen: CHF 2.20, 26-40 Personen: CHF 2.00. Winter: unter 20 Personen: CHF 5.00, 21-25 Personen: CHF 4.00, 26-30 Personen: CHF 3.50, 31-40 Personen: CHF 3.00

Bettwäsche (optional)
1 Garnitur (1 Leintuch, 1 Duvetanzug
und 1 Kissenanzug) pro Mietdauer CHF 18.00
(20 Duvets zur Verfügung)
Stornobedingungen
- weniger als 6 Monate vor der Anreise 50 % von den Gesamtkosten
- weniger als 3 Monate vor der Anreise 100 % von den Gesamtkosten

Verfügbarkeit
Oktober 2025
November 2025
KW
Mo
Di
Mi
Do
Fr
Sa
So
KW
Mo
Di
Mi
Do
Fr
Sa
So
40
29
30
1
2
3
4
5
41
6
7
8
9
10
11
12
42
13
14
15
16
17
18
19
43
20
21
22
23
24
25
26
44
27
28
29
30
31
1
2
45
3
4
5
6
7
8
9
44
27
28
29
30
31
1
2
45
3
4
5
6
7
8
9
46
10
11
12
13
14
15
16
47
17
18
19
20
21
22
23
48
24
25
26
27
28
29
30
49
1
2
3
4
5
6
7
Ankunftstag
belegt
Abreisetag
teilweise belegt
geschlossen
auf Anfrage
Standort
Lage des Hauses
- zentrale Lage
- in den Bergen
- Nähe Skigebiet
- Einkauf zu Fuss möglich
- Zufahrt bis zum Haus ganzjährig
Erreichbarkeit
mit öffentl. Verkehr
mit dem Zug bis St. Stephan - 10 Gehminuten zum Haus
mit Auto / Reisecar
mit dem Reisecar - Zufahrt bis zum Haus (Parkplatz gegenüber)
mit dem Auto - Zufahrt bis zum Haus - 1 Parkplatz (Der Parkplatz ist neben dem Abfallcontainer (problematisch zum hinausfahren, Kantonsstrasse). Restliche Parkplätze Richtung Lenk beim Sportplatz gegenüber der Holzerei. Das Parken bei der Bäckerei ist verboten!)

MapMarker

Mit dem Laden der Karte akzeptierst Du die Datenschutzerklärung von Google.
mehr erfahren


1 Bewertung * (5,0 )
Jana M
Aufenthalt mit 38 Personen im März • Veröffentlicht am 12.03.2025
Das Haus ist ist super in Schuss. Top Sauberkeit, tolle Betreuung durch den Hauswart, Küche sehr gut ausgestattet, Betten gemütlich, viel Platz für Ski, Schuhe, Jacken etc. Toller Garten. Zentrale Lage zwischen Gstaad und Lenk. Super Anbindung an Zug und Bus. Einzig die Straße direkt vor dem Haus ist etwas laut (man gewöhnt sich daran) und die Parkplätze in etwas weiterer Entfernung brauchen mehr Logistik am Morgen. Wir würden jederzeit wieder kommen! Der Skiverleih/Skiservice (Schreinerei) direkt unterhalb des Hauses war total nett und gut.

Weitere Informationen
Jetzt unverbindlich anfragen
 

3 Gäste